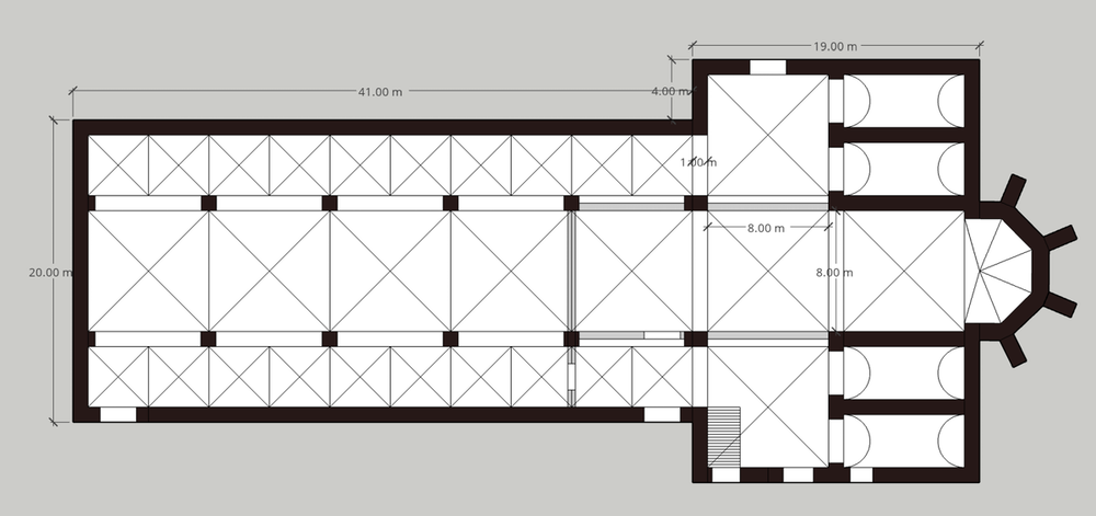
- Plan der Klosterkirche
grau - vermutliche Lage der Chorschranke,
im Mittelschiff ist auf Grund der gefundenen Rippenfragmente
und Kapitellreste ein Kreuzrippengewölbe
wahrscheinlich, die Seitenschiffe sind wohl zuerst gewölbt worden mit dem
einfacheren Kreuzgratgewölbe.
Die Form des Langhauses wird als gebundenes System
bezeichnet: einem Joch des Mittelschiffes entsprechen zwei Joche der Seitenschiffe.
Die polygonale Apsis ist vermutlich später entstanden, da die Nebenkapellen mit dem Tonnengewölbe doch einen
recht archaischen Eindruck machen.
Für weitere Betrachtungen zur Rekonstruktion sei auf
Untermann verwiesen, besonders S. 233 ff. zu Raumaufteilung
und Nutzung.

- Ansicht von Südwesten
Die Westfassade ist ein Versuch.
Gurlitt deutet in seinen
Plänen kein Westportal an. Also ist der Zugang für Laien nur über den Westflügel der Klausur möglich.
Dort befand sich auch häufig direkt ein Empfangsraum, dort wurden ja auch hochrangige Gäste empfangen.
Die Westfassade wurde von mir mit einer bei Zisterziensern häufigen Dreifenstergruppe versehen.
Da ein Klosterzugang ähnlich Altzelle zu vermuten ist, dürfte eine entsprechende repräsentative Gestaltung
vorgelegen haben (ähnlich Chorin, Lehnin, ...).
Die Zweifenstergruppen im Obergaden sind ebenfalls nur eine plausible Annahme. Das Gewölbe würde es ja
zulassen.

- Isometrische Darstellung von Süden
Entsprechend der Größe des Konvents muss der Chor der Mönche mindestens bis ins erste Joch des Langhauses
gereicht haben.
Die Türen von links nach rechts:
• Zugang der Konversen und Laien,
• Zugang der
Mönche aus dem Kreuzgang, weiter oben
• Zugang der Mönche aus dem Dormitorium, wieder unten
• Zugang
zur Sakristei und zu deren Erweiterung,
ganz unten die Totenpforte aus dem Querhaus zum Friedhof.
Das Gestühl der Konversen wurde nicht dargestellt.

- Der Chor der Mönche nach Osten
Im Vordergrund die Chorschranke mit dem Kreuzaltar für die Konversen. Die Türen wurden ähnlich Maulbronn
eingesetzt. Eine liturgische Funktion haben sie eigentlich nicht, es sei denn bei der Beerdigung eines
Mönches, da wären sie der logische Ausgang auf dem Weg zur Totenpforte.
Auf der Rückseite der Chorschranke befinden sich die Stallen für Abt und Prior, der Abt rechts/südlich.
Im Mönchschor wurden liturgisch Abtsseite und Priorseite unterschieden.
Aus Platzgründen können die Stallen der Mönche nur einreihig gewesen sein. Novizen haben i.a. auf Stühlen
davor gesessen. Es muss einen Durchgang durch die rechte Stallenreihe gegeben haben, durch den die Mönche
den Chor betraten, Stelle unklar. Die Stallenreihen reichten stets nur bis zu den Stufen zum Prebyterium.
Das Presbyterium wurde nur vom Dienst tuenden Priester, seinem Diakon und dem Subdiakon betreten, und nur
während der Messe. Zu bestimmten Zeiten während der Messe durften sie in der Sedilien-Nische Platz
nehmen, an der rechten Wand des Presbyteriums angedeutet. Ganz im Osten der Hochaltar, später sicher
durch ein retabulum erweitert, wie der Name sagt, einen Aufsatz hinter dem Altartisch.
Gewöhnlich nahm dieses Retabel weitere Reliquien auf. Die Lage der piscina ist unbekannt.
Auch Osterkerze und Lesepulte wurden nicht dargestellt.
Im südlichen, dem Kloster zugewandten Seitenschiff setzte sich die Chorschranke fort. Dort sollten die
Konversen keinen Zugang zur Klausur haben. Rechts ist auch die Treppe zum Dormitorium zu sehen.
