- Plan der Klausur
Osten ist oben, rot - aufgehendes Mauerwerk,
hellgrau - Grabungen Gurlitt (1901/1902), dunkelgrau - Grabungen seit 2002

- Isometrische Ansicht von Südosten
Das wäre der Blick von der Maylust.
Im Zentrum der Kreuzgang.
Er diente als Zugang zu allen Räumen der Klausur und war der Ort für
• die lectio divina im Nordflügel an der Kirche,
• die Prozessionen,
• das Üben des Chorgesangs,
• die Fußwaschung,
• den Aderlass,
• das Scheren der Tonsur,
• die Waschung vor den Mahlzeiten,
aber auch z.B. das Ausschlagen der Kleidung und die Herstellung der Hostien.

- Ostflügel der Klausur
Der Ostflügel ist nach Auffassung der Zisterzienser für die anima, also den Verstand zuständig.
Es folgen von Nord nach Süd
die Sakristei mit dem verlorenen östlichen Erweiterungsbau,
das Armarium, ein verschließbares Bücherregal mit den Büchern für die lectio divina,
der Kapitelsaal mit dem ebenfalls verlorenen Kapellenanbau,
der Durchgang vom Kreuzgang zur Infirmerie mit dem Aufgang zum Dormitorium.
das Auditorium könnte dort auch noch Platz gefunden haben,
der Brüdersaal für alle Arbeiten, die nicht m Freien ausgeführt werden konnten, und
der letzte Saal, jetzt Lapidarium, früher vielleicht Skriptorium, erreichbar nur durch den Brüdersaal.
Das gesamte Obergeschoss bildete das Dormitorium mit dem direkten Zugang zur Kirche zur Vigil und dem Zugang vom
Kreuzgang aus. Am südlichen Ende wurde mit einer Holzwand das Necessarium angedeutet. Die vermauerten Durchgänge
zum Südflügel deuten den Ansatz desselben an, ihre ehemalige Funktion ist unklar. Die Fensteröffnungen folgen
dem Arbeitsheft,
ganz hinten das Necessarium mit dem Spülgraben.

- Südflügel der Klausur
Der Südflügel ist nach Auffassung der Zisterzienser für das corpus, also den Körper zuständig.
Dort folgen von West (rechts) nach Ost die Küche, das Kalefaktorium und das Refektorium. Das Obergeschoss diente
vermutlich als Lager. Auch im Refektorium war die Sitzordnung festgelegt. An der Ostseite saßen die Ältesten und
der Prior (an der Nola, einer kleinen Glocke, mit der er zum Aufstehen und Setzen aufforderte, bzw. den Vorleser
auf Fehler hinwies). Angedeutet ist die Lesekanzel und eventuell gesonderte Sitze für hochrangige Gäste.
Im Kalefaktorium konnte die Wärme vom Küchenherd genutzt werden.

- Westflügel der Klausur
Der Westflügel war für die Konversen bestimmt. Es war ein Charakteristikum der Zisterzienser, dass sie die
Konversen direkt mit in die Klausur integriert haben. Aber doch sorgfältig getrennt, sowohl ihr Bereich in der
Kirche, als auch der Zugang dazu. Im Erdgeschoss befand sich im Süden (rechts), im Anschluss an die Küche, das
Refektorium der Konversen, Lager und Arbeitsräume, der Bereich des Cellerars, im Obergeschoss ihr Dormitorium.
Der Zugang zur Kirche muss wohl auch im Gebäude gelegen haben, denn aus den Grabungsbefunden Gurlitts ist kaum
eine Konversengasse zu ersehen. Im Konversenflügel muss sich auch der Eingang der Klausur überhaupt befunden
haben, also auch der Zugang für Gäste (Bischof, Adel, Pilger), häufig sogar als Empfangshalle gestaltet.

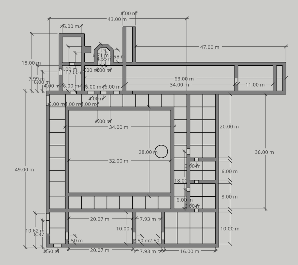
- Detaillierte Massangaben der Rekonstruktion
Die Gewölbe sind im allgemeinen frei erfunden, lediglich die ersten drei Abschnitte am Ostflügel vor dem Eingang
zur Kirche sind 6x5m, gemäß dem Befund an der Wand des Ostflügels. Dort sind die Aussparungen für die
Konsolsteine im Abstand von 6m nachträglich in die vorhandene Mauer eingebracht. Bei den anderen Konsolsteinen
ist die Aussparung vorbereitet.
Die Baugeschichte des Kreuzganges ist ohnehin nicht geklärt. Noch im 14. Jahrhundert erfolgt eine Stiftung für
ein Seelgerät mit der Auflage, das Geld für den Ausbau des Kreuzganges zu verwenden.
